An expansive space that will straddle LA’s famed Wilshire Boulevard, the project will feature 110,000 square feet of gallery space in one single level to display and present art in a non-hierarchical, egalitarian way. As part of the new building, Clark will construct a new theater, education spaces, three restaurants, a museum shop, multi-purpose event spaces, and ancillary and back-of-house facilities.
The California Building for the Permanent Collection is slated to open to the public in 2024.
Client
California Building Co
Location
Los Angeles, California
Category
Construction & Engineering
Architect
Thomas Smith Studio
Year Completed
2024
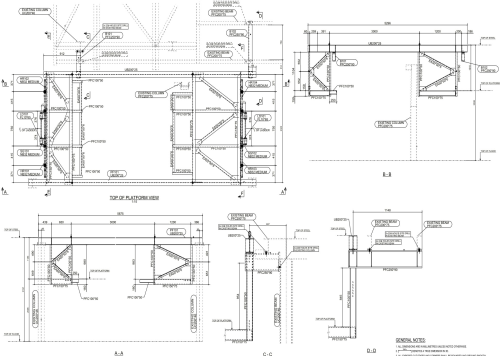
REGIS Belt Splicing Structure – 3D Modelling and Fabrication Drawings
Our team was tasked with delivering detailed fabrication drawings and a 3D model for the REGIS Belt Splicing platform, using the client’s input as the foundation. The project challenged us to devise a practical, installation-ready structure while overcoming real-world site constraints.
Our Approach
- Site Evaluation: We performed a focused site visit to assess conditions and identify installation limitations.
- Digital Surveying: Advanced 3D laser scanning captured the site with high accuracy for reference.
- Data Preparation:Scan data was meticulously processed to create an exact digital base.
- Structural Design: Structural members were selected and precisely positioned in line with the site’s requirements.
- 3D Modeling:A comprehensive platform model was built using professional software, incorporating client specifications.
- Connection Engineering: All structural connections were developed to meet project standards and installation best practices.
- Feature Integration: Key features such as handrails, grating, and ladder access were included for complete usability.
- Client Review: The digital model and drawings were presented for client input and approvals.
- Adaptive Engineering: To address on-site obstructions, we transitioned the design from a single welded assembly to modular bolted connections for easier installation.
- Final Submission: The full set of fabrication drawings was delivered ahead of schedule.
Outcome
The completed deliverables met every requirement with accuracy and efficiency. Our proactive problem-solving and attention to detail ensured a safe, efficient, and fully site-ready belt splicing platform, delivered on time and ready for construction.












