An expansive space that will straddle LA’s famed Wilshire Boulevard, the project will feature 110,000 square feet of gallery space in one single level to display and present art in a non-hierarchical, egalitarian way. As part of the new building, Clark will construct a new theater, education spaces, three restaurants, a museum shop, multi-purpose event spaces, and ancillary and back-of-house facilities.
The California Building for the Permanent Collection is slated to open to the public in 2024.
Client
California Building Co
Location
Los Angeles, California
Category
Construction & Engineering
Architect
Thomas Smith Studio
Year Completed
2024
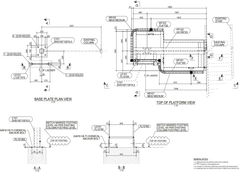
REGIS Hydraulic Pump Access Platform – 3D Modelling & Fabrication Drawings
Our team was commissioned to create precise fabrication drawings and a full 3D model for a hydraulic pump access platform. Leveraging the client’s specifications, we delivered a compliant, build-ready solution tailored for seamless site installation.
Execution Process
- Site Inspection: Conducted a thorough on-site review to document existing conditions and spatial limitations.
- 3D Laser Scanning: Captured accurate area data using advanced scanning technology.
- Digital Base Creation: Processed and registered all scan data to form a reliable reference for design.
- Structural Member Design: Determined the size and placement of platform members based on validated site data.
- 3D Platform Modelling: Developed a complete 3D digital model using professional design software.
- Connection Engineering: Designed all platform connections in full accordance with industry standards.
- Feature Integration: Integrated essential elements including handrails, grating, and ladder access for safety and functionality.
- Engineering Analysis: Performed load checks and model analysis; the design was certified by the principal engineer.
- Client Collaboration: Submitted the finished model for client review and made revisions as needed.
- Package Delivery: Provided the full set of fabrication drawings ahead of the scheduled deadline.
Outcome
The project was delivered without the need for rework, providing fully accurate drawings and models, compliance with all standards, and timely completion—demonstrating our ability to engineer practical, dependable access platform solutions.












